Maison LUNA – Plain-pied de 102 m² – 2 chambres
Plan de maison de plain-pied 2 chambres
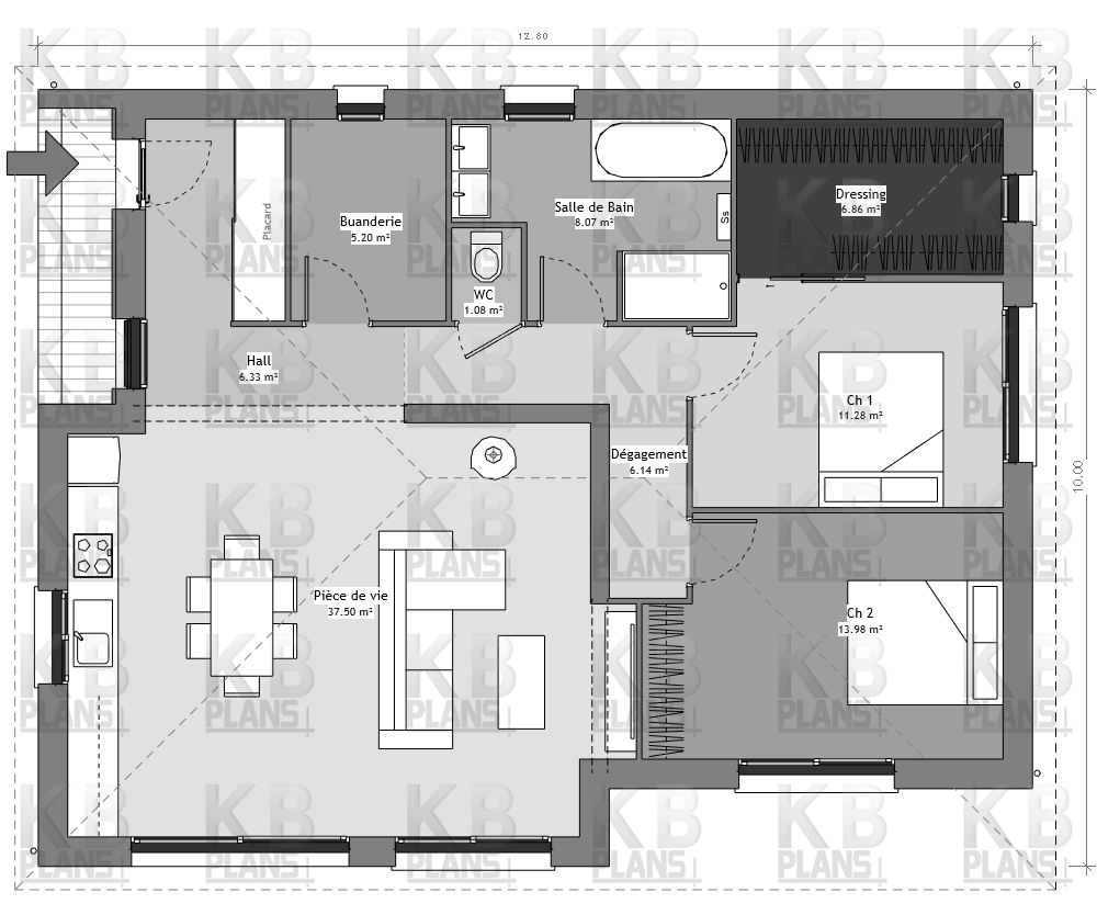
Description :
La maison traditionnelle de plain-pied LUNA comporte 2 chambres. Elle est conçue pour offrir un espace chaleureux et fonctionnel. Avec une superficie de 102m², cette maison propose une distribution pratique avec deux chambres, une salle de bain, une grande pièce de vie et une buanderie.
Les deux chambres sont spacieuses, offrant un confort et une intimité pour tous les membres de la famille. Une salle de bain complète avec baignoire et douche est également prévue pour répondre aux besoins quotidiens. La pièce principale de vie comprend une cuisine ouverte, un salon et une salle à manger, créant un espace convivial pour se retrouver en famille ou recevoir des invités. La présence d’une buanderie séparée permet d’organiser facilement les tâches ménagères et de maintenir la maison ordonnée.
Ce plan de maison traditionnelle de plain-pied offre un agencement pratique et fonctionnel pour un style de vie confortable. Avec ses deux chambres, sa salle de bain, sa grande pièce de vie et sa buanderie, cette maison répond parfaitement aux besoins d’une famille. Profitez d’un espace chaleureux et accueillant, où chaque élément a été pensé pour faciliter votre quotidien. C’est le projet d’investissement idéal.
Superficie :
102 m²
Options :
Choisissez l’option “PERSONNALISATION” pour avoir les options possibles ci-dessous. Nous vous contactons dans les 48h pour définir avec vous votre besoin :
Toit plat, 1 ou 2 pentes,
Garage accolé
Plan :
Additional information
| Chambres | |
|---|---|
| Bureau | |
| Salles de bain | |
| Surface |
99,00€ – 249,00€
Une fois que vous aurez acheté votre produit, vous recevrez un document complet tel que l’exemple accessible ci-dessous :
Pour plus d’informations, vous pouvez nous contacter via le formulaire ci-dessous :






