Maison OASIS – Plain-pied 4 chambres de 143 m²
Plan de maison 4 chambres de plain-pied
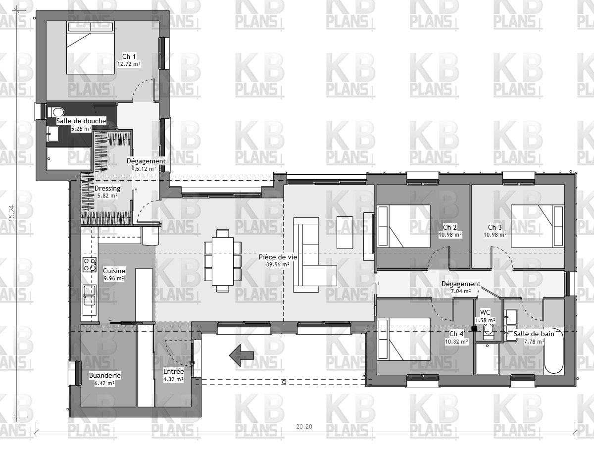
Description :
OASIS est un plan de maison moderne, de plain-pied avec 4 chambres. Le débord de toit abrite une entrée débouchant dans un hall avec un grand placard. La cuisine desservant la buanderie peut être fermée selon vos souhaits. Le côté gauche de la maison est la partie nuit parentale, comportant une chambre, une salle de douche avec WC et un dressing. La partie droite de la maison est la zone de nuit des enfants et des invités, comptant 3 chambres, une salle de bain et un WC séparé.
Superficie :
143,60 m²
Options :
Choisissez l’option “PERSONNALISATION” pour avoir les options possibles ci-dessous. Nous vous contactons dans les 48h pour définir avec vous votre besoin :
Toit plat, 1 ou 2 pentes,
Garage accolé
Plan :
Informations complémentaires
| Chambres | |
|---|---|
| Bureau | |
| Salles de bain | |
| Surface |
99,00€ – 249,00€Plage de prix : 99,00€ à 249,00€
Une fois que vous aurez acheté votre produit, vous recevrez un document complet tel que l’exemple accessible ci-dessous :
Pour plus d’informations, vous pouvez nous contacter via le formulaire ci-dessous :






