Maison INFINITY – 120 m² – 3 chambres
Plan de maison 3 chambres avec étage
Description :
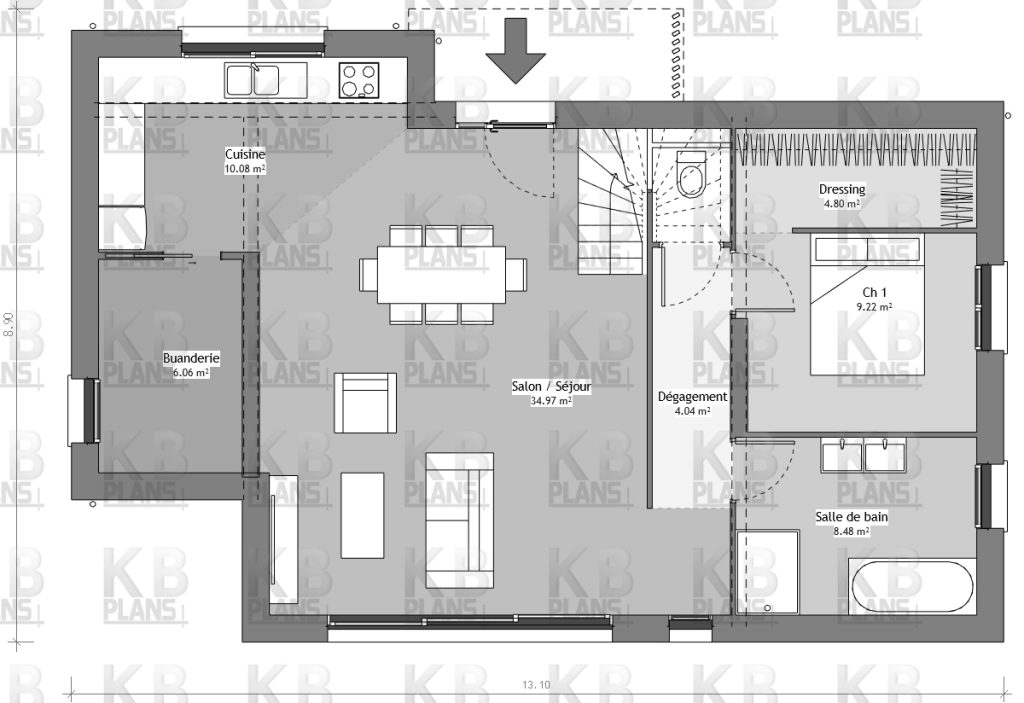
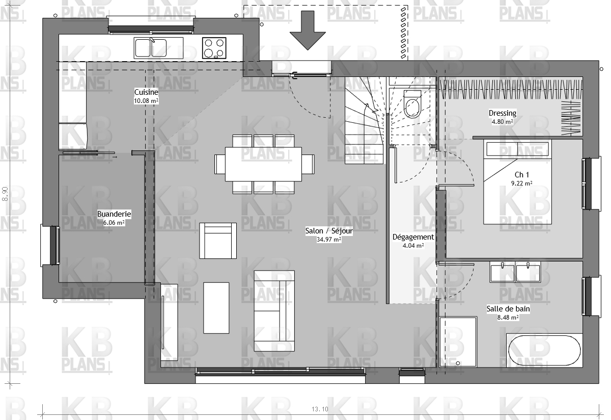
Le modèle de maison avec étage INFINITY comporte 3 chambres. Le rez-de-chaussée propose toutes les prestations que l’on peut attendre d’une maison moderne : une grande pièce de vie avec cuisine ouverte pouvant être cloisonnée, une buanderie et un dégagement desservant un WC séparé, une salle de bain et une chambre avec dressing. Le dégagement à l’issue de l’escalier dessert deux belles chambres de plus de 12m² avec placard et une salle de douche avec WC.
Superficie :
Superficie globale : 120,41 m²
Rez-de-chaussée : 80,25 m²
Étage : 40,17 m²
Options :
Choisissez l’option “PERSONNALISATION” pour avoir les options possibles ci-dessous. Nous vous contactons dans les 48h pour définir avec vous votre besoin :
Toit plat, toit 1, 2 ou 4 pentes,
Garage accolé
Rez-de-chaussée :
Étage :
Informations complémentaires
| Chambres | |
|---|---|
| Bureau | |
| Salles de bain | |
| Surface |
119,00€ – 269,00€Plage de prix : 119,00€ à 269,00€
Une fois que vous aurez acheté votre produit, vous recevrez un document complet tel que l’exemple accessible ci-dessous :
Pour plus d’informations, vous pouvez nous contacter via le formulaire ci-dessous :






