Maison VIVA – 128 m² – 4 chambres
Plan de maison 4 chambres et 2 salles de bains
Description :
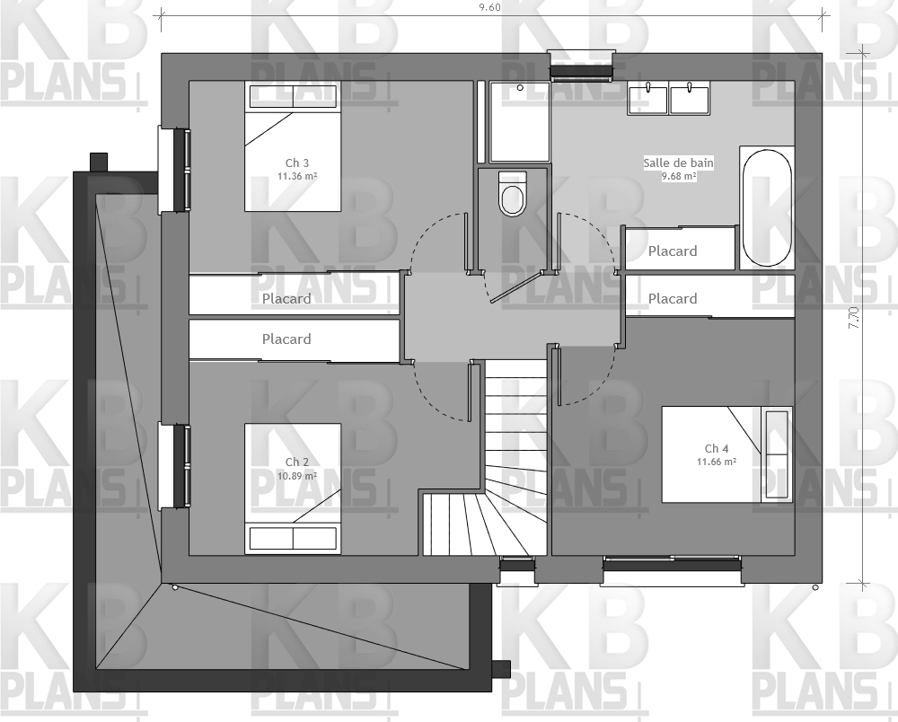
Le plan de maison VIVA est un modèle de maison avec étage rationnel de style contemporain comptant 4 chambres. Tous les mètres carrés sont utiles, l’espace de rangement est sacré ! Proposant au rez-de-chaussée une pièce de vie de plus de 43 m² avec cuisine ouverte, un dégagement desservant un WC, une buanderie et une chambre parentale avec salle de douche. L’escalier monte sur un dégagement desservant 3 chambres de 11 m² chacune comportant son grand placard. Un WC séparé, une salle de bain avec baignoire, douche et placard complètent cet étage.
Superficie :
Superficie globale : 128,12 m²
Rez-de-chaussée : 70,78 m²
Étage : 57,35 m²
Options :
Choisissez l’option “PERSONNALISATION” pour avoir les options possibles ci-dessous. Nous vous contactons dans les 48h pour définir avec vous votre besoin :
Toit plat, toit 1, 2 ou 4 pentes, garage
Rez-de-chaussée :
Étage :
Informations complémentaires
| Chambres | |
|---|---|
| Bureau | |
| Salles de bain | |
| Surface |
119,00€ – 269,00€Plage de prix : 119,00€ à 269,00€
Une fois que vous aurez acheté votre produit, vous recevrez un document complet tel que l’exemple accessible ci-dessous :
Pour plus d’informations, vous pouvez nous contacter via le formulaire ci-dessous :






